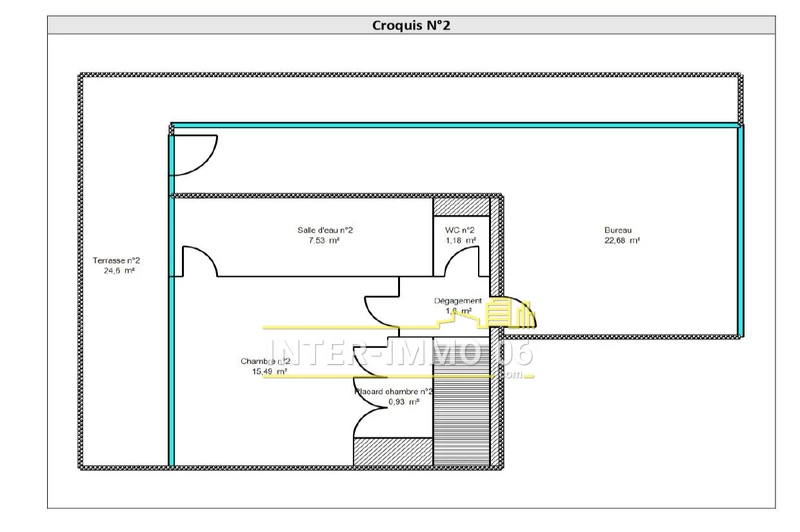
CAGNES-SUR-MER Les Vespins, duplex 119 m2
CAGNES SUR MER, quartier très recherché des VESPINS, dans une belle résidence avec PISCINE située au pied des commerces tout en étant au CALME et à 200m du bord de mer, MAGNIFIQUE duplex 3/4 pièces de 119m² habitables en DERNIER ETAGE, au 1er niveau un vaste séjour avec cuisine ouverte de 50m² ouvrant sur une TERRASSE de 58m² en angle sud et ouest bénéficiant d'une VUE MER PANORAMIQUE, une chambre et une salle d'eau, à l'étage une seconde chambre en suite avec sa salle d'eau, un bureau de 22m² climatisé et une seconde terrasse de 25m². L'ensemble est CLIMATISÉ et en PARFAIT ETAT avec de belles prestations. Pour votre confort l'appartement est complété par une CAVE, un GARAGE et un PARKING privatif. Possibilité d'achat d'un parking supplémentaire. VERITABLE COUP DE COEUR !
Caracteristiques
- Surface séjour : 50 m²
- Surface terrasse : 83 m²
- Année construction : 1990
- Exposition : Sud ouest
- Vue : Mer panoramique
- Eau chaude : Individuelle électrique
- État intérieur : Excellent
- Standing : Résidentiel
- État immeuble : Bon
- 2 chambres
- 2 terrasses
- 2 salles de douche
- 2 toilettes
- 1 garage
- 1 parking
- 1 cave
Prestations
- Ascenseur
- Double vitrage
- Résidence sécurisée
- Calme
- Résidentiel
- Stores électriques
- Volets roulants électriques
Efficacité énergétique
Classe énergie (dpe)
C
-
Classe climat (ges)
A
En savoir plus
Informations légales
- 795 000 €
Honoraires à la charge du vendeur, bien en copropriété (48 lots dans la copropriété), charges courantes annuelles 3 155 € (263 € par mois), aucune procédure en cours, les informations sur les risques auxquels ce bien est exposé sont disponibles sur georisques.gouv.fr, notre barème de prix est consultable ici










