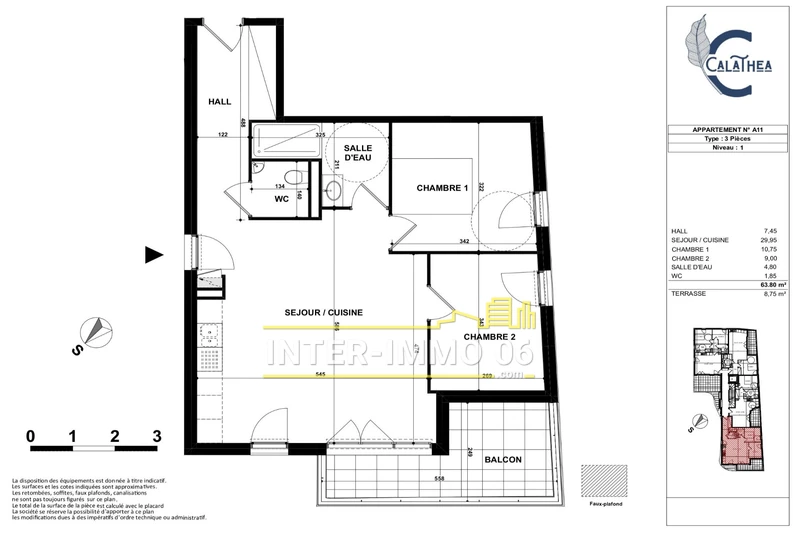
VILLENEUVE-LOUBET Les Maurettes, appartement 64 m2
VILLENEUVE LOUBET, partie haute du quartier des Maurettes, dans une toute petite résidence de seulement 8 appartements, superbe 3 pièces de 64m² bénéficiant d'une triple exposition, séjour avec cuisine ouverte de 30m² ouvrant sur une belle terrasse profonde, vue dégagée et mer, 2 chambres, salle de douches, wc indépendant, belles prestations, climatisation, cumulus thermodynamique et possibilité de parking privatif.
Caracteristiques
- Surface séjour : 30 m²
- Surface terrasse : 9 m²
- Année construction : 4ème trim 2026
- Exposition : Sud est
- Vue : Dégagée et mer
- Eau chaude : Individuelle thermodynamique
- État intérieur : Neuf
- Standing : Résidentiel
- État immeuble : Neuf
- 2 chambres
- 1 terrasse
- 1 salle de douche
- 1 toilette
Prestations
- Ascenseur
- Double vitrage
- Résidence sécurisée
- Résidentiel
- Volets roulants électriques
Efficacité énergétique
Classe énergie (dpe)
Non soumis
-
Classe climat (ges)
Non soumis
En savoir plus
Informations légales
- 450 000 €
Honoraires à la charge du vendeur, bien en copropriété (8 lots dans la copropriété), aucune procédure en cours, les informations sur les risques auxquels ce bien est exposé sont disponibles sur georisques.gouv.fr, notre barème de prix est consultable ici





