MANDELIEU-LA-NAPOULE CANNES MARINA, appartement 52 m2
L'Agence de la Mer Mandelieu vous propose en EXCLUSIVITE
TRES BEAU 2P EN EXCELLENT ETAT
Mandelieu Secteur Cannes Marina, proche du village de la Napoule, plages, Golf Old Course et tous commerces,
dans résidence sécurisée avec Gardien et piscine,
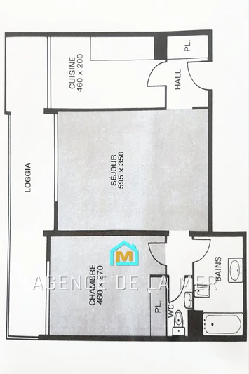
Très bel appartement 2P en rez de jardin et en façade de 52m², en excellent état et au calme.
Entrée, dégagement, rangements, séjour salle à manger sur terrasse, cuisine indépendante aménagée sur terrasse, grande chambre (12.30m²) avec placards sur terrasse, salle de douche refaite et toilettes indépendants.
Cet appartement dispose de beaux volumes ainsi que d'une loggia/terrasse de 30m² + jardinet 20m² environ
1 Parking privatif en sous-sol et une cave
Eau chaude et chauffage collectifs ainsi qu'une climatisation réversible neuve séjour + chambre
Ravalement de façade en cours d'exécution et financé 100% par les vendeurs.
Nous contacter au 0660871221 pour tous renseignements complémentaires ou demande de visite
Caracteristiques
- Surface séjour : 20 m²
- Surface terrasse : 20 m²
- Année construction : 1978
- Exposition : Sud est
- Vue : Jardin
- Eau chaude : Collective
- État intérieur : Excellent
- Standing : Résidentiel
- État immeuble : Bon
- 1 chambre
- 1 terrasse
- 1 salle de douche
- 1 toilette
- 1 parking
- 1 cave
Prestations
- Ascenseur
- Double vitrage
- Résidence sécurisée
- Calme / Etat impeccable
- Pks s/s et cave
- Climatisation réversible
- Terrasse + jardinet
- Volets roulants électriques
- Piscine
- Salle de douche refaite
Efficacité énergétique
Classe énergie (dpe)
C
-
Classe climat (ges)
C
En savoir plus
Informations légales
- 334 000 €
Honoraires à la charge du vendeur, bien en copropriété (429 lots dans la copropriété), charges courantes annuelles 2 916 € (243 € par mois), aucune procédure en cours, les informations sur les risques auxquels ce bien est exposé sont disponibles sur georisques.gouv.fr, notre barème de prix est consultable ici










