GRASSE Saint Jacques, land 1513 m2
Located in the peaceful residential neighborhood of Saint-Jacques, a great gently sloping plot of 1513m², fully fenced.
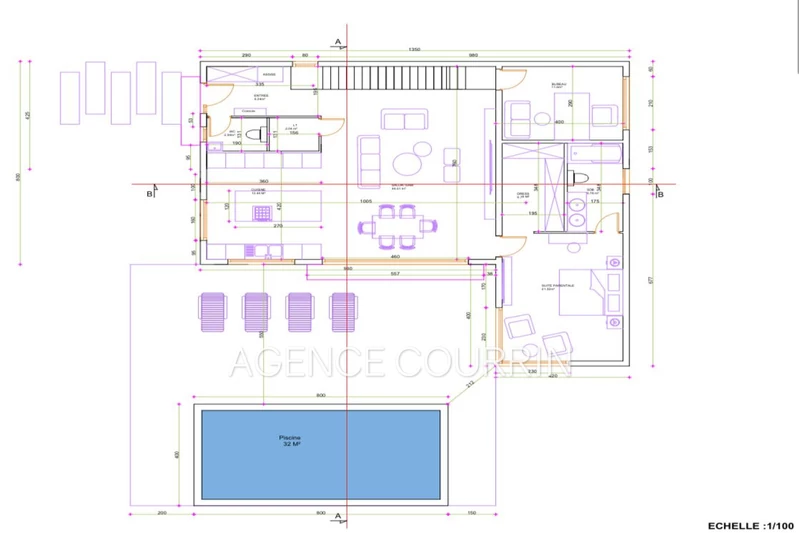
Building permit approved and finalized for a modern villa with a **green flat roof**, offering a total of 183m² of living space over two floors, along with a swimming pool and garage.
Open to any builder. Water and electricity are available at the property boundary. Individual sewage system required.
Zone UJr. Just steps away from shops, schools, and the expressway.
Plot offered for sale EXCLUSIVELY by your ORPI Saint-Jacques real estate agency.
Features
- Exposition : SOUTH
- View : garden
Features
- CALM
- Fenced
- flat
- Free manufacturer
Practical information
Energy class (dpe)
Unavailable
-
Emission of greenhouse gases (ges)
Unavailable
Learn more
Legal information
- 375 000 €
Fees paid by the owner, no current procedure, information on the risks to which this property is exposed is available on georisques.gouv.fr, click here to consulted our price list






