SAINTE-MAXIME near downtown, apartment 76 m2
Great Opportunity: 2-Bedroom Apartment in Downtown Sainte-Maxime
**** EXCLUSIVE OFFER ****. Just steps from shops.
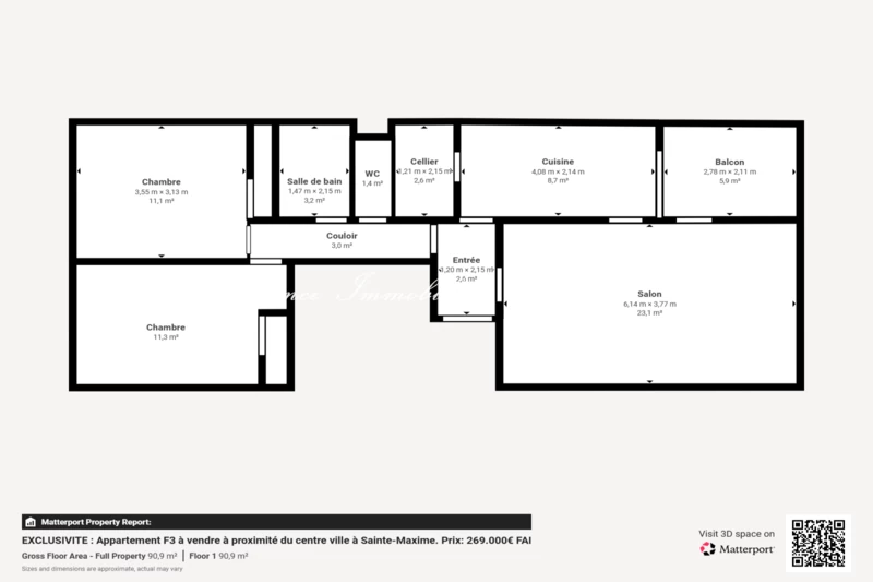
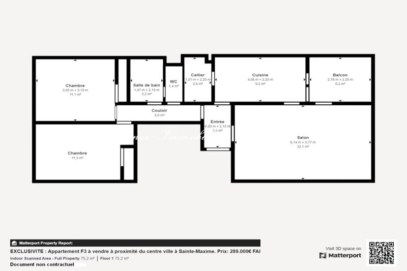
Beautiful three-room apartment in excellent condition located in a secure building with elevator.
Offering a total area of 76 m² (70 m² + 6 m² of enclosed loggia), it features an entrance, a living room opening onto a 6 m² enclosed loggia/veranda, a fitted and equipped kitchen with a pantry opening onto the loggia, a hallway leading to two bedrooms with built-in closets, a shower room, and a separate toilet.
In perfect condition. Double glazing, electric shutters. Private parking. South-facing. Apartment with cross ventilation. Garden view.
Information about risks related to this property is available on the Géorisques website: www.georisques.gouv.fr **** EXCLUSIVE OFFER ****
Features
- Surface of the living : 22 m²
- Surface of the terrace : 6 m²
- Year of construction : 1970
- Exposition : south-north
- View : open
- Hot water : individual electric
- Inner condition : excellent
- Building condition : GOOD
- 2 bedroom
- 1 terrace
- 1 shower
- 1 WC
- 1 parking
Features
- lift
- double glazing
- gated
- CALM
- electric shutters
- Visitor Parking
Practical information
Energy class
D
-
Climate class
B
Learn more
Legal information
- 269 000 € fees included
5,00% VAT of fees paid by the buyer (256 196 € without fees), well condominium, annual current expenses 2 088 € (174 € monthly), no current procedure, information on the risks to which this property is exposed is available on georisques.gouv.fr, click here to consulted our price list














